Gia công tiện CNC_Bài 2: Các nhóm lệnh cơ bản trên máy Tiện CNC FL 20L

Các nhóm lệnh cơ bản trên máy Tiện CNC FL 20L

Chu trình gia công trên bề mặt

Danh sách các lệnh G

tien-cnc-35

tien-cnc-36

Bảng mã M

tien-cnc-37

tien-cnc-38 Mẫu chương trình

%
Oxxxx                                    (Tên chươngtrình)
G18;                                       Khai báo Mặt phẳng làm việcZX
G20/G21;                              (Đơn vị: inch/mm)
G98/G99;                              Lượng tiến dao tính theo mm/ phút hoặc mm/vg
G28U0.;                                (Về gốc tọa độ máy)
G28W0.;                               (Về gốc tọa độmáy)
T0x0y;                                   Gọi dao với 0x: Số thứ tự dao trên ổ dao – 0y: số thứ tự Offset)
G96/G97;                              (Cài/ Hủy tốc độ bề mặt không đổi)
G50S_;                                  (Giới hạn số vòng quay trục chính)
M03S_;                                 (Quay cùng chiều kim đồng hồ với S_ vg/phút)
G00X_ Z_;                           (Chạy dao nhanh)
M8;                                         (Mở dung dịch tưới nguội)
M9;                                         (Tắt dung dịch tướinguội)
G28U0.;                                (Về gốc tọa độmáy)
G28W0.;                               (Về gốc tọa độmáy)
M5;                                         (Dừng trục chính)
Lựa chọn mặt phẳng gia công (G17, G18,G19).
Để thực hiện nội suy cung tròn, bù bán kính dụng cụ, quay hệ toạ độ, sao chép theo góc quay, sao chép song song, và khoan, cần thiết phải chọn mặt phẳng làm việc.
Với máy tiện CNC, mặt phẳng mặc định ZX, khi bật máy lên G18 có hiệu lực.
tien-cnc-39
tien-cnc-40
Chú ý:
–   G18 đã được tự động lựa chọn khi bật máy.
Di chuyển dụng cụ với tốc độ chạy không cắt (G00)
G00 X_Z_:       Chạy dao nhanh (Fmax) không cắt gọt G00:                                    Lệnh chạy dao nhanh
X_Z_:                         Tọa độ điểm đích
Di chuyển dụng cụ theo đường thẳng với tốc độ chạy dao cắt gọt (G01)
G01 X_Z_F_ G01 U_W_F_
G01:                           Nội suy đường thẳng
X_Z_(U_W_):          Tọa độ điểm đích theo tọa độ tuyệt đối (tương đối).
F_:                                    Tốc độ tiến dao.
Di chuyển dụng cụ theo cung tròn với tốc độ tiến dao cắt gọt (G02,G03)
G02 (G03) X… Z… I… K… F… G02 (G03) X… Z… R… F…
–   G02:             Gọi nội suy cung tròn theo chiều kim đồnghồ.
–   G03:             Gọi nội suy cung tròn ngược chiều kim đồng hồ.
–   X,Z:             Toạ độ điểm cuối cung tròn theo tọa độ tuyệtđối.
–   I,K:              Khoảng cách và chiều tính từ điểm bắt đầu cung tròn đến tâm cung tròn theo tọa độ tương đối phương X, Z.
Khoảng cách và chiều tính từ tâm cung tròn đến điểm bắt đầu cung tròn theo tọa độ tương đối theo phương X, Z.
–   R:                  Bán kính cung tròn.
–   F:                  Tốc độ chạy dao.
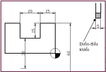
Váp mép (C)
tien-cnc-41
Lưu ý : 
–   Vát mép C chỉ thực hiện với 2 khoảng cách vát bằng nhau từ giao tuyến 2 bềmặt.
–   Vát mép C chỉ thực hiện với 1 khoảng cách từ giao tuyến 2 bề mặt và góc vát450.
–   Khoảng cách vát nhỏ hơn khoảng bề rộng của 1 trong 2 bề mặt có giao tuyến.
–   Đối với máy Tiên CNC FLC 20L thì “C-k.” và “C+k.” giốngnhau.
–   Với trường hợp vát mép C có 2 khoảng cách vát khác nhau thì ta phải sử dụng đường chạy dao nội suy theo đường thẳng (G01).
Trình tự xác định vị trí váp mép C:
–   Bước 1: Viết chương trình đường chạy dao với các lệnh G01.
–   Bước 2: Xác định vị trí vát mép (giao tuyến 2 bềmặt).
–   Bước 3: Xác định bề rộng của nhỏ nhất của 1 trong 2 bề mặt có giáo tuyến.
–   Bước 4: Di chuyển con trỏ chuột đến dòng lệnh có vị trí vát mép.
–   Bước 5: Sau mã lệnh X_ Z_, thêm mã C vào dòng lệnh.
–  Bước 6: Kết quả trên Cimco hoặc chạy mô phỏng.
Ví dụ:
tien-cnc-42
tien-cnc-43
Bo tròn bán kính R
Bo tròn bán kính theo hướng X
tien-cnc-44
Bo tròn bán kính theo hướng Z
tien-cnc-45
Lưu ý:
–   Bo tròn R chỉ thực hiện với 2 khoảng cách bo bằng nhau từ giao tuyến 2 bề mặt.
–   Khoảng cách bo nhỏ hơn khoảng bề rộng của 1 trong 2 bề mặt có giao tuyến.
–   Đối với máy Tiên CNC FLC 20L thì “R-k.” và “R+k.” giống nhau.
–    Với trường hợp bề mặt có giao tuyến không tiếp tuyến với bề mặt bo tròn thì ta phải sử dụng đường chạy dao nội suy theo cung tròn (G02,G03).
Trình tự xác định vị trí bo tròn R
–   Bước 1: Viết chương trình đường chạy dao với các lệnh G01.
–   Bước 2: Xác định vị trí bo tròn (giao tuyến 2 bề mặt).
–   Bước 3: Xác định bề rộng của nhỏ nhất của 1 trong 2 bề mặt có giáo tuyến.
–   Bước 4: Di chuyển con trỏ chuột đến dòng lệnh có vị trí bo tròn.
–   Bước 5: Sau mã lệnh X_ Z_, thêm mã R vào dòng lệnh.
–  Bước 6: Kết quả trên Cimco hoặc chạy mô phỏng.
Ví dụ:
tien-cnc-46
tien-cnc-47
 

Bo tròn và vát mép theo góc (R,C,A)

tien-cnc-48

tien-cnc-49

tien-cnc-50

tien-cnc-51 tien-cnc-51

Chu trình đơn Tiện mặt đầu (G94)

tien-cnc-52

tien-cnc-53

Chu trình đơn Tiện côn mặt đầu (G94)

tien-cnc-54

tien-cnc-55

Chu trình đơn tiện trụ ngoài hoặc trong (G90)

tien-cnc-56

tien-cnc-57

Chu trình đơn tiện côn trụ ngoài hoặc trong (G90)

tien-cnc-58

tien-cnc-59

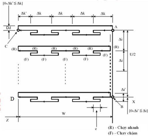
Chu trình Tiện bóc vỏ từng lớp song song với trục Z (G71)

G71 U(Dd) R(e);
G71 P(ns) Q(nf) U(Du) W(Dw) F(f) S(s) T(t);

tien-cnc-60

Chu trình này có hai loại.
Loại 1 – Loại đường cong không có vùng lõm
Loại 2 – Loại đường cong có vùng lõm. Số vùng lõm tối đa là 10.
tien-cnc-61
Loại 1 – Loại đường cong không có vùng lõm
Cho cả hai loại đường cong, chương trình được viết như nhau, tuy nhiên trong đọan chương trình mô tả đường cong có sự khác nhau như sau:
Trong đường cong loại 1, dòng đầu tiên chỉ chứa một trục, thí dụ X (U) hay Z (W). G71 U10.0 R5.0;
G71 P100 Q200 …;
N100 X(U)_; Dòng đầu tiên chỉ chứa một trục.
:
N200 …………………..;
Loại 2 – Loại đường cong có vùng lõm
Trong đường cong loại 2, dòng đầu tiên chứa cả hai trục, thí dụ X (U) Z (W).
Nếu chuyển động theo phương Z không có, phải viết W0. Nếu không, dụng cụ có thể cắt vào mặt vai.
G71 U10.0 R5.0; G71 P100 Q200…….;
N100 X(U)_ Z(W)_; Dòng đầu tiên chứa hai trục
N200…………………..;
Ví dụ 1:
tien-cnc-62
% O1711
N100 G21;
N110 G28 U0.;
N120 G28 W0.;
N130 T0101;
N140 G97 M03 S800;
N150 G54 G0 X150.Z150.;
N160M8;
N170 G00 X106. Z5.;
N180 G71 U1.R1.;
N190 G71 P200 Q220 U3. W0. F0.25;
N200 G00 X60.;
N210 G01 Z-75. F0.15;
N220 X100.;
N230 G00 X105.;
N240 Z5.;
N250 G70 P200 Q220;
N260 G00 X105.;
N270 G28 U0.;
N280 G28W0.;
N290 M9;
N300 M05;
N310 T0100;
N320M30;
%
Ví dụ 2:
tien-cnc-63
% O1712
G21; G28 U0.;
G28W0.;
T0101;
G50 S2000;
G97 M03 S120;
G54 G0 X150. Z150.;
M8;
G00 X55.0 Z5.0;
G71 U2.0 R1.0;
G71 P100 Q190 U0.8 W0.1 F0.4;
N100 G00 X17.0;
N110 G01 Z0.0 F0.2;
N120 X20.0 Z-1.5;
N130 Z-20.0;
N140X25.0;
N150 X30.0 Z-45.0;
N160 Z-50.0;
N170 G02 X40.0 Z-55.0 R5.0;
N180 G01 X50.0;
N190 Z-70.0;
G00 X55.;
Z5.;
G28 U0.;
G28W0.;
M9;
M05;
T0100;
M30;
%
Ví dụ 3:
tien-cnc-64
%
O1713
G21;
G28 U0.;
G28 W0.;
T0101;
G50 S2000; G97 M03 S120;
G54 G0 X150. Z150.; M8;
G00 X60.0 Z5.0;
G71 U2.0 R1.0;
G71 P100 Q200 U0.8 W0.1 F0.3;
N100 G00 X17.0;
N110 G01 Z0.0;
N120 X20.0 Z-1.5;
N130 Z-20.0;
N140X25.0;
N150 X30.0 Z-45.0;
N160 Z-52.;
N170 G02 X36.0 Z-55.0 R3.0;
N180 G01 X45.0;
N190 G03 X55.0 Z-60.0 R5.0;
N200 G01 Z-70.0;
N210 G00 X60.;
Z5.;
G70 P100 Q200 F0.1;
G00 X60.;
Z5.;
G28 U0.
G28 W0.
M9;
M05;
T0100;
M30;
%
Chu trình tiện thô dọc theo mẫu đường cong (G73)
tien-cnc-65
Ví dụ:
tien-cnc-66
O56116 G50 S2000;
G97 S120 M03;
T0101;
G00 X140.0 Z20.0;
G73 U15.0 W15.0 R3.;
G73 P50 Q130 U0.8 W0.2 F0.3;
G28 X120.0 Z120.0;
M05;
M30;
N50 G00 X40.0 Z5.0;
N60 G01 Z-30.0;
N70 X50.0;
N70X50.0;
N80 X60.0 Z-35.0;
N90 Z-70.0;
N100 G02 X70.0 Z-75.0 R5.0;
N110 G01 X100.0;
N120 G03 X120.0 Z-85.0 R10.0;
N130 G01 Z-105.0;
Chu trình Tiện tóc vỏ từng lớp song song với trục X (G72)
G72 W(Dd) R(e);
G72 P(ns) Q(nf) U(Du) W(Dw) F(f) S(s) T(t);
Các ký hiêu có ý nghĩa giống như trong lệnh G71.
Trong dòng đầu tiên ns của chương trình mô tả đường cong, dụng cụ phải di chuyển theo trục Z và hoàn toàn không có sự di chuyển theo trục X. Hoặc G00 hoặc G01 được dùng trong dòng lệnh này.
tien-cnc-67
Ví dụ:
tien-cnc-68
O56114;
G50 S2000;
G97 S120 M03;
T0101;
G00 X65.0 Z5.0;
M08;
G72 W2.0 R1.0;
G72 P160 Q260 U0.8 W0.2 F0.3;
G28 X80.0 Z80.0;
M09;
M05;
M30;
N160 G00 Z-55.0;
N170 G01 X60.0;
N180 Z-45.0;
N190 X50.0 Z-40.0;
N200 G01 X30.0 N210 Z-35.0;
N220 Z-30.0;
N230 X20.0 Z-15.0;
N240 X15.0;
N250 Z-1.5;
N260 X11.0 Z-0.5;
Chu trình tiện tinh (G70)
Sau các lệnh tiện thô G71, G72, – bạn mới có thể thực hiện việc tiện tinh.
Nguyên tắc viết lệnh như sau:
G70 P(ns) Q(nf) F(f)
Trong đó:
ns = Số block đầu tiên của đọan chương trình mô tả đường cong cần gia công nf = Số block cuối cùng của đọan chương trình mô tả đường cong cần gia công
Lưu ý:
–   Nếu như các giá trị F, S và T giữa ns và nf trong các block G71, G72, G73 bị vô hiệu thì ngược lại, trong G70 lại có hiệulực.
–   Giữa ns và nf trong các lệnh G70 đến G73 không được gọi chương trình con.
–   Trong G70, bù trừ bán kính mũi dao có hiệulực.
–   Còn trong G71, G72, G73, không có bù trừ bán kính dao.
Để tiện tinh nhiều lớp cho hết lượng dư tiện tinh được để lại từ các bước tiện thô, phải chỉ ra chiều sâu cắt tinh U và W, nếu không thì không cần phải cho U, W trong lệnh G70.
Khi đó câu lệnh được viết như sau:
G70 P(ns) Q(nf) U( D u) W( D w) F(f);
Trong đó
Du = Chiều sâu tiện tinh theo phương X
Dw = Chiều sâu tiện tinh theo phương Z
Ví dụ 1:
%
O3001;
G21;
G28 U0.;
G28W0.;
T0101;
G97 S250 M03;
G54 G00 X65.0 Z5.0;
M08;
G70 P160 Q270 U0.8 W0.2 F0.3;
N160 G00 Z-55.0;
N170 G01 X60.0; N180 Z-45.0;
N190 X50.0 Z-40.0;
N200 G01 X30.0 N210 Z-35.0;
N220 Z-30.0;
N230 X20.0 Z-15.0;
N240 X15.0;
N250 Z-1.5;
N260 X11.0 Z-0.5;
N270 Z5.;
G00 X150. Z150.;
M9;
M5;
M2; T0100;
M30;
%
Ví dụ 2: Áp dụng G71, G70 hãy viết chương trình tiện thô và tinh gia công chi tiết
tien-cnc-69
% O5117
G50 S2000;
G97 S120 M03;
G21;
G28 U0.;
G28W0.;
T0101;
G00 X55.0 Z5.0;
G71 U2.0 R1.0;
G71 P50 Q140 U0.8 W0.1 F0.4;
N50 G00 X17.0;
N60 G01 Z0.0 F0,2;
N70 X20.0 Z-1.5;
N80 Z-20.0;
N90 X25.0;
N100 X30.0 Z-45.0;
N110 Z-50.0;
N120 G02 X40.0 Z-55.0 R5.0;
N130 G01 X50.0;
N140 Z-70.0;
G70 P50 Q140; (xét nếu có thêm U0.4 và W0.05) G28 X80.0 Z80.0;
M05;
M02;
T0100;
M30;
%
Ví dụ 3: Dùng lệnh G72 và G70 lập trình tiện thô và tinh nhiều lớp dọc theo trục X
tien-cnc-70
O5118;
G50 S2000;
G97 S120 M03;
T0101;
G00 X85.0 Z2.0;
G72 W4.0 R1.0;
G72 P50 Q140 U0.8 W0.1 F0.3;
N50 G00 Z-63.0;
N60 G01 X60.0 F0.15;
N70 Z-53.0;
N80 X50.0;
N80Z-38.0;
N90 X44.0 Z-35.0;
N100 X30.0;
N110 Z-20.0;
N120 X20.0 Z-15.0;
N130 Z-2.0;
N140 X12.0 Z2.0;
G70 P50 Q140; (xét nếu có thêm U0.5 và W0.05)
G28.0 X80.0 Z80.0;
M05;
T0100;
M30;
Chu trình tiện rãnh mặt đầu (G74)
G74 R(e);
G74 X(U)_ Z(W)_ P(Di) Q(Dk) R (Dd) F(f);
Trong đó:
e – Khoảng lùi dao.
X – Tọa độ X tuyệt đối của điểm D + 2* bề rộng dao tiện rãnh (tính theo đường kính) U – Khoảng cách tương đối từ A đến D theo trục X (U < 0)
Z – Tọa độ Z tuyệt đối của điểm D
W – Khoảng cách tương đối từ A đến D theo trục Z (W < 0)
tien-cnc-71 – Khoảng dịch chuyển của dụng cụ theo phương X, lập trình theo bán kính và không có dấu
tien-cnc-72 – Chiều sâu mỗi lần cắt theo phương Z, không có dấu
tien-cnc-73  – Khoảng để lại ở đáy lỗ, luôn luôn mang dấu dương (+). Tuy nhiên, khi X(U) và Di bị bỏ qua thì nó có thể mang dấu mong muốn.
f – lượng chạy dao. Chú ý:
–   Nếu e và Dd đều có trong R, ý nghĩa của chúng tùy theo sự tồn tại của X(U). Khi X(U) được dùng, Dd cũng sẽ được dùng.
–   Rãnh được cắt bắt đầu tại A (điểm có đường kính lớn) -> D (điểm có đường kính nhỏ).
–   Xét điểm điều khiển của dao tiện rãnh.
tien-cnc-74
Ví dụ:  tien-cnc-75
O5121
G50 S1000;
G97 S2000 M03;
T0202;
M08;
G00X60.0 Z5.0;                                 Vị trí đầu tiên là điểm A
G74 R1.0;
G74 X30.0 Z-20.0 P4000 Q10000 F0.15;                       Vị trí điểm D (X30 = 20 + 2×5) M09;
M05;
T0200;
M30;
Chu trình tiện rãnh trụ ngoài hoặc trong (G75)
Chu trình này tương tự như G74, chỉ khác là X được thay thế bởi Z. Nguyên tắc viết lệnh như sau: G75 R(e);
G75 X(U)_ Z(W)_ P(Di) Q(Dk) R(Dd) F(f);
Trong đó
e – Khoảng lùi dao
X – Tọa độ X tuyệt đối của điểm D
U – Khoảng cách tương đối từ A đến D theo trục X (U < 0) Z – Tọa độ Z tuyệt đối của điểm D
W – Khoảng cách tương đối từ A đến D theo trục Z (W < 0)
tien-cnc-71  – Khoảng dịch chuyển của dụng cụ theo phương X, lập trình theo bán kính và không có dấu
– Chiều sâu mỗi lần cắt theo phương Z, không có dấu.
Dd – Khoảng để lại ở đáy lỗ, luôn luôn mang dấu dương (+). Tuy nhiên, khi X(U) và Di bị bỏ qua thì nó có thể mang dấu mong muốn.
f – lượng chạy dao. Chú ý:
–   Rãnh được cắt bắt đầu tại vị trí điểm A (điểm có đường kính lớn) (có cộng thêm bề rộng dao tiện rãnh) -> D (điểm có đường kính nhỏ).
–   Xét điểm điều khiển của dao tiệnrãnh.
–   Cắt đứt chi tiết -> ZD =ZA.
G75 R(e);
G75 X(U) P(Di) F(f);
tien-cnc-76
Ví dụ:
tien-cnc-77
%
O5123
G50 S1000;
G97 S2000 M03;
T0303;
M08;
G00X65.0 Z5.0;                                                       Vị trí đầu tiên là điểm A theoX
Z-20.0;                                                                       Vị trí đầu tiên là điểm A theo Z (Z20 = 15 +5)
G75 R1.0;
G75 X30.0 Z-35.0 P8000 Q4000F0.15;             Vị trí điểm D M09;
M05;
M30;
%
Chu trình tiện ren trụ (G92,G32)
Chu trình G92 giống như G32 chỉ khác là có thể nhấn nút Feed Hold để dừng gia công ren giữa chừng.
G92 X(U)_ Z(W)_F_
X(U)_ Z(W)_: là tọa độ cần tới, X(U) tính theo đường kính
F_: lượng chạy dao tạo bước ren L.
tien-cnc-78
Ví dụ:
tien-cnc-79
%
O5595
N10 G00 X200. Z200.;
N20 T0707;
N30 G97 S600 M03;
N40 G00 X26.0 Z8.0 M08;
N50 G92 X19.0 Z-42.0 F2.5;
N60 X18.3;
N70 X17.7;
N80 X17.3;
N90X16.9;
N100X16.75;
N110 G28.0 X80.0 Z80.0; N120M05;
N130M30;
%
Chu trình tiện ren côn (G92) 
G92 X(U)_Z(W)_ R_ F_
Trong đó:
X(U)_ Z(W)_: là tọa độ cần tới, X(U) tính theo đường kính R_: Độ nâng của mặt ren côn, tính theo bán kính (Xđầu – Xcuối)
Góc vát chân ren  tien-cnc-80  do tính trễ của hệ thống servo(R) – Chạy nhanh với bước ren L.
(F) – chạy ăn dao tạo bước ren L. F_ là lượng chạy dao
Ví dụ:
tien-cnc-81
 
% O5597;
G97 S500M03;
T0707;
G00 X32.0 Z5.0;
M08;
G90X24.1Z-25.0R-3.0F2.0;
X23.5;
X22.9;
X22.5;
X22.4;
G28 X80.0 Z80.0;
M09;
M05;
M30;
%
Chu trình tiện ren nhiều lớp (G76)
tien-cnc-82
G76 P(m) (r) (a) Q(Ddmin) R(d);
G76 X(u)_ Z(W)_R(i) P(k) Q(Dd) F(L)
Trong đó:
m – số lần tiện ren tinh (1-99).
r – Khoảng vuốt chân ren. r = (0.0 … 9.9) L; với L là bước ren.
a – Góc mũi dao tiên ren, có thể chọn trong số sáu giá trị sau: 80o, 60o, 55o, 30o, 29o và 0o.
Thí dụ, nếu m = 2, r = 1.2L, a = 60o, địa chỉ P viết như sau: P021260
Admin – Chiều sâu cắt nhỏ nhất, (lập trình theo bán kính).
d – Lượng dư tiện tinh (tính theo bán kính và luôn dương). X(U)_ Z(W)_: là tọa độ cần tới, X(U) tính theo đường kính i
– Lượng nghiêng của ren côn (Xđầu – Xcuối).
k – Chiều cao ren (tính theo bán kính) (luôn dương) (tra bảng thông số ren)
tien-cnc-83
L – Bước ren, giống như G32.
Ví dụ:
tien-cnc-84
% O5127
N10 G97 S600 M03; N20 T0505;
N30 M08;
N40 G00 X30,0 Z5.0;
G76 P011060 Q040 R020;
G76 X21.1 Z-27.0 P1950 Q0900 F3.0;
N50M09;
M70 G28 X80.0Z8.0; N80M05;
N90M30;
%
 
 
 
 
 
 
 
 
 
 
 
 
 
 
 
 
 

This will help in development of https://pro-academic-writers.com/ mutual understanding and comfort level between you and your teacher.